Rénovation complète – Redistribution des pièces, remise aux normes et relooking – Maison de campagne
Bienvenue dans cette belle maison de campagne (ancienne ferme) d’une superficie de 160 m2 .
Cette maison au fort potentiel a été entièrement repensée : distribution des pièces, remise aux normes, amélioration et relooking, tout en conservant son charme rustique.
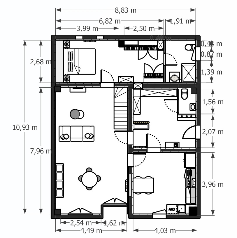
Rez-de-chaussée

Suite parentale
Réunification d’un cellier non aménagé et d’une salle de bain pour une création d’une suite de 22m²

Séjour
Au départ, une salle à manger qui ne bénéficie pas d’une grande luminosité – les changements pour sa transformation ont été minutieusement étudiés pour une métamorphose remarquable.

Entrée
Une entrée spatieuse (wc + cellier)

Cuisine
Une cuisine dans de nouvelles teintes, dans un esprit campagne, offrant un espace préparation ainsi que de nombreux rangements.
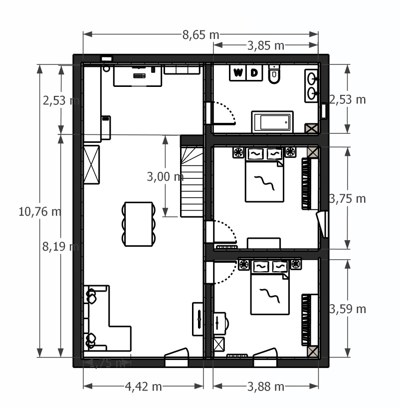
Etage

Salle à manger - Bibliothèque
Ancienne grange - création d'un nouvel espace de vie : un spacieux séjour avec coin bibliothèque ; on tombe sous le charme des poutres apparentes et du toît mansardé !

Salle de bain
Débarras grange - création d'espace : salle de bain avec coin buanderie

Chambre 1
Raffraichissement de ces deux chambres au charme rustique possédant un plancher en bois d'origine

Chambre 2
Etat des lieux
Rénovation intégrale de chaque pièce de cette maison de campagne (ancienne ferme) - Retrouvez le projet de rénovation de chaque espace de cette maison.
Rénovation et création d'espace -
Ancienne superficie : 116 m²
Nouvelle superficie : 173 m²

Rez-de-chaussée

Etage