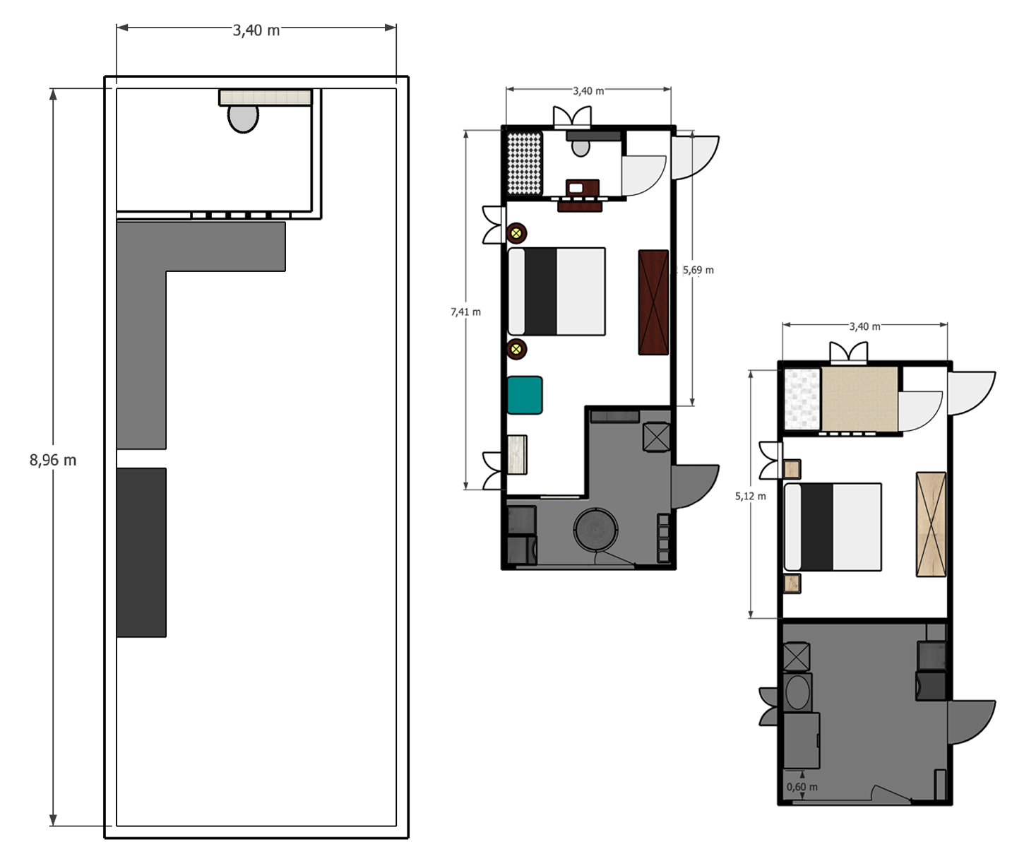
Creation  d’une  suite  parentale  dans  un  garage

 

Création d’une suite parentale dans des une teinte vert canard dans deux univers décoratifs

Transformation pour ce garage aménagé, qui avait pour rôle de  cellier / débarras.

Le projet : créer une suite parentale en conservant un espace réduit pour le stock des aliments + laverie (cellier/buanderie)

Un seul mot d’ordre en terme de décoration : utiliser la teinte « bleu canard » ; quartier libre sur les choix de matériaux et le parti pris de l’ambiance décorative.

Retrouvez ci-dessous les 2 propositions

 

Ambiance Art déco

Ambiance Nature