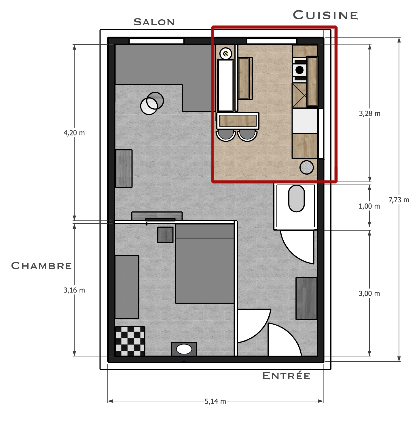
Une kitchenette dans une maison de petite superficie

Cet appartement est une résidence secondaire, prévu pour des locations de courtes durées.Système d’électricité, plomberie, aération, tout a été évalué pour proposer une kitchinette dans un espace réduit adapté à l’aménagement de cette maison.

Le souhait des clients : séparer la cuisine du séjour.

Retrouvez deux proposition de kitchenettes, l’une totalement fermée, l’autre semi ouverte.

 

Projet n°1 : une kitchenette semi ouverte

Etat des lieux

Projet n°2 : une kitchenette fermée

Etat des lieux